접지 개념도 (Earthing Philosophy)에 대한 설명을 계속하겠습니다.
3. 플랜트 지역의 접지
1) Pipe Rack 접지
아래 그림에서 보듯이 Pipe Rack 접지는 두 가지 접지로 구성됩니다.
첫 번째는 Pipe Rack 자체에 대한 접지입니다. P/R은 50m 간격으로 접지를 합니다. 50m를 맞추기 어려우면 보통 P/R 간격이 6m 이기 때문에 8개의 P/R마다 접지를 하도록 각 도면의 Note에 기재되어 있습니다. 이 접지를 위해서 P/R에 접지 버스를 설치하고 이 버스에서 P/R 칼럼과 위쪽의 배관을 접지합니다.
두 번째는 배관을 접지하는 것입니다. 모든 배관은 50m 간격으로 접지를 해야 합니다. 이는 정전기를 방지하는 목적입니다. 그림에는 배관의 위쪽에 접지가 되도록 그려져 있지만 실제로는 아래쪽에 LUG를 용접해서 접지를 합니다. 이는 보온재를 뚫고 나와야 하는데 위로하면 비가 올 때 물이 들어가서 아래로 하는 것을 선호합니다.

아래 그림은 평면도 상에서 실제로 어떻게 표시되는 지를 보여줍니다. 왼쪽에 보면 배관 그림도 있고 Note 6을 보라고 되어있는 부분입니다. 접지 버스와 칼럼 접지 그리고 배관 접지도 표시되어 있는데 모든 곳에 표시되지는 않고 Typical로 한 군데에만 보여줍니다.

2) 케이블 트레이 접지
케이블 트레이의 접지는 3가지로 구성되어 있습니다.
첫 번째는 각 케이블 트레이 수직 배열마다 하나의 메인 접지 선을 보통 제일 윗쪽의 트레이에 설치합니다.
두 번째는 메인 접지선과 각 트레이를 30m 간격마다 연결을 해줍니다. 물론 트레이의 연결 부위에는 플렉시블 점퍼선으로 모두 연결되어 있습니다. 개념도에는 표시가 없지만 위의 평면도를 보면 30m 간격의 본딩시에 대지에도 접속하도록 하고 있습니다.
세 번째는 트레이의 시작 점과 끝 부분에서는 대지의 접지에 연결되어야 합니다. 이 부분은 개념도 상에 나와 있지 않지만 많은 프로젝트에서 요구하기도 하므로 함께 체크하면 좋습니다.

3) 탱크와 베셀의 접지
탱크나 베셀은 기기의 직경에 따라서 접지와의 연결 지점 개수가 달라집니다. 앞의 노트에서 설명을 했습니다. 최소 2군에서 접지를 해야 하고 직경이 15m 이상이면 4군데, 30m 이상이면 8군데로 늘어납니다. Foundation의 철근 접지는 탱크 바닥의 특성에 따라 달라집니다. Cathodic Protection을 하는 경우에는 적용 방법이 다릅니다.

4) 칼럼 위의 기기 접지
칼럼 위에 기기가 설치되는 경우에는 하부에 접지 버스를 설치하고 여기에서 연결해서 각 층마다 루프를 형성하고 그 루프에서 각 기기로 접지 연결을 하게 됩니다. 당연히 칼럼 자체도 접지를 하여야 합니다. 아래의 그림은 칼럼이 콘크리트인 경우와 철골인 경우 두 가지를 표현한 것입니다. 콘크리트 칼럼 위에 있는 핸드레일은 별도로 접지를 해야 합니다.

5) 각종 기기의 접지
이 프로젝트에서는 접지봉 간의 간격이 25m를 넘지 않도록 요구하고 있습니다. 가로등과 같은 등기구와 칼럼, 타워, 열교환기등이 아래 그림에 표시되어 있습니다. 특히 열교환기는 고정 지지대의 안쪽으로 접지 연결을 하는 것이 중요합니다.

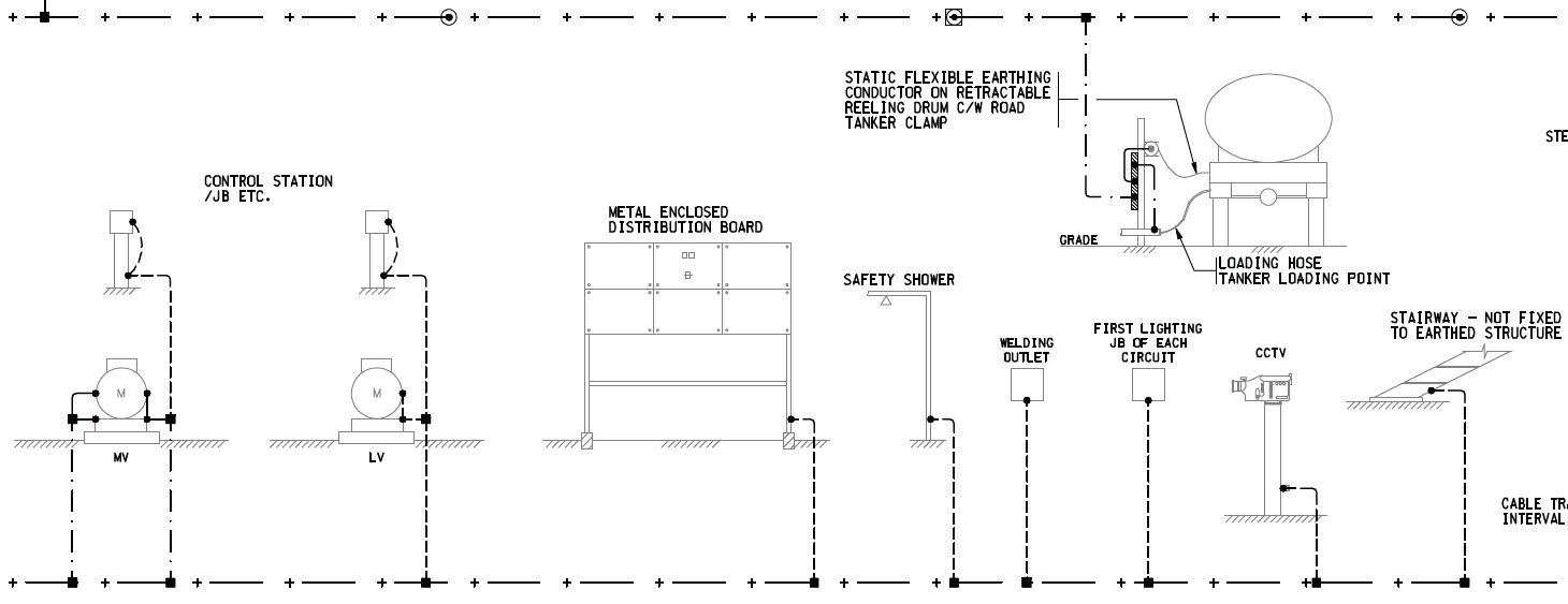
6) 전동기의 접지와 기타 기기 접지
저압 전동기는 한 군데 접지를 하고 고압 전동기는 두 군데 접지를 하도록 요구하고 있습니다. PUMP 등의 기기와 연결된 전동기의 경우 공통 받침(Common Bed)도 접지를 해야 합니다. 전등용 분전반이나 기타 전기 설비, 는 접지를 해야 합니다. 비상 샤워기, 용접용 리셉터클, 전등 JB, CCTV 그리고 Steel로 된 계단과 핸드레일은 접지를 해야 합니다. 탱크로리의 접지를 위한 설비도 설치되어야 합니다.

이상과 같이 접지 개념도를 살펴보았습니다. 물론 이 개념도에 모든 접지가 표현되는 것은 아니지만 대부분의 접지에 대한 기준이 제공되기 때문에 접지에 대한 기술 사양서와 이 도면이 있으면 대부분의 접지 문제는 해결이 됩니다. 일부 특수한 예를 들면 계장 관련 사항 등은 별도로 협의가 필요합니다.
이 설명으로 플랜트의 접지에 대한 이해를 높이는데 도움이 되기를 바랍니다.
'전기 Engineering > 피뢰와 접지' 카테고리의 다른 글
| 도시 지역에서의 접지 저항 측정에 대하여 (2) | 2023.12.06 |
|---|---|
| 대형 접지 전극 시스템의 저항 측정의 문제점과 대책 (1) | 2023.12.03 |
| 접지 시스템 개념도 설명 (EARTHING SYSTEM PHILOSOPHY) - 1 (1) | 2023.11.04 |
| 소규모 화학 공장의 접지 계산서 샘플 (2) | 2023.10.13 |
| 소규모 공장의 접지 시방서 작성 (샘플) (0) | 2023.10.12 |