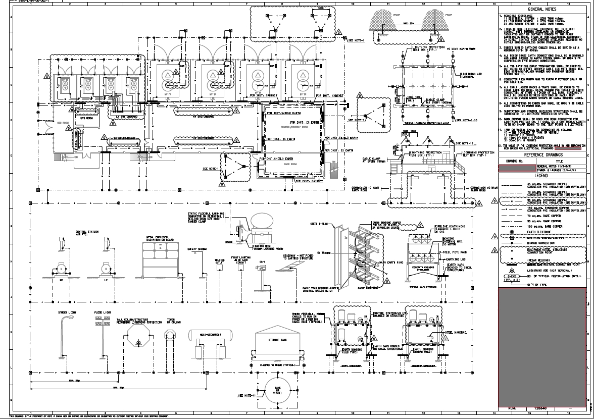
이번 포스팅은 접지 개념도에 대한 것입니다. 프로젝트를 시작하면 FEED ENGINEERING사에서 작성된 아래와 같은 개념도가 같이 오는 경우가 있습니다. 없으면 직접 작성합니다. 이 개념도는 어떻게 접지를 할 지에 대하여 가이드를 주기 위한 것입니다. 접지 케이블 사이즈와 접지 포인트가 몇 개 인지도 보여주고 통합접지인지 분리접지인지도 보여줍니다.
아래 도면의 부분 부분을 잘라서 보여드리며 설명을 해서 플랜트의 접지가 어떻게 수행되는지를 설명하겠습니다.

1. 접지에 대한 기준 제시
도면의 오른쪽 상단 부분입니다. 기본적인 접지 기준을 제시하고 있습니다.
1) 요구 접지 저항값을 제시합니다. 전기는 4 ohm 이하, 피뢰는 10 ohm 이하, 계장은 1 ohm 이하입니다.
2) 전기 기기가 아니면서 접지된 철 구조물과 직접 연결되지 않은 부분은 플랜트 접지 네트워크에 본딩해야 합니다. 즉 모든 전기가 흐를 수 있는 접지되지 않은 파트는 접지하거나 접지된 부분과 연결 (본딩) 되어야 한다는 요구입니다.
3) 직매되는 접지선은 최소 450mm 지하에 매설되어야 한다는 것입니다.
4) 지하에 묻히는 접지선의 연결은 THERMOWELD 형식이어야 하고 지상에서 연결되는 부분은 COMPRESSION 형식이어야 합니다.
5) 모든 접지선의 접속은 오프셑 압착식 LUG를 사용해야 합니다. 황동 와셔와 인청동 스프링 와셔를 사용해야 합니다.

- 직경이 15m 미만이면 2 지점 연결
- 직경이 15m 이상이고 30m 미만이면 4 지점 연결
- 직경이 30m 이상이면 8지점 연결
12) 피뢰침의 보호 각도는 전기 표준서에 따릅니다.

2. 빌딩의 접지
빌딩의 접지는 변전소 (Substation) 과 제어실 (Control Building)에 대해서 설명합니다.
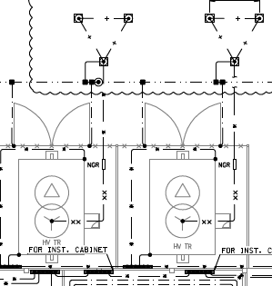
1) 변전소의 변압기 지역
- 고압 변압기의 중성점 접지 - 중성점은 NGR을 거쳐서 별도의 접지봉에 직접 연결된 후 이 접지봉을 변전소의 MESH 접지망에 연결합니다. 이렇게 하는 이유는 필요시 변압기 중성점 접지를 메쉬접지와 분리할 수 있도록 하고 단독으로 접지 저항을 측정할 수 있도록 하기 위함입니다.
- 변압기 외함 접지 - 변압기의 외함은 최소 두군데에서 접지에 연결시킵니다. 이 프로젝트에서는 변압기용 별도의 접지 버스를 설치하고 그 접지 버스에 변압기 외함 접지를 연결 하였습니다. 이것도 접지 고장이 발생 시 변압기 외함 접지를 메인과 분리할 수 있도록 하기 위함입니다.
- 변압기 펜스 접지 - 변압기 실의 철제 펜스는 접지되어야 합니다. 그리고 도어도 별도로 접지합니다. 힌지는 접지 연결이 되지 않으므로 편조선이나 점퍼선으로 도어를 접지해야 합니다.

2) 전기실 수배전반 접지 - 수배전반은 열반될대 접지 버스가 서로 연결되기 때문에 배전반의 양쪽 끝만 접지에 연결하면 됩니다. 최소 두군데에서 연결되어야 합니다. 배전반실의 아래에 있는 케이블 룸에 접지 버스를 설치하고 이를 링으로 연결하여 어느 한 군데에서 접지가 끊어져도 문제가 없도록 구성하고 배전반의 접지는 이 접지 버스에 연결합니다. 필요시 분리할 수 있도록 하는 것이 중요합니다.

3) 전기실의 피뢰 보호 접지 - 지붕에 설치된 피뢰침들을 연결하는 피뢰도선을 설치하고 보호등급에 맞는 인하도선 간격을 결정하여 인하도선을 설치합니다. 이 인하도선은 TEST BOX에 연결된후 접지봉으로 연결을 하고 이 접지봉은 메인 메쉬에 연결합니다. 이를 통해서 피뢰보호 접지가 메인 메쉬와 연결되는 통합접지가 구성됩니다. 단 필요시 피로접지도 메인 메쉬에서 분리될 수 있도록 합니다. 인하도선이 직접 접지봉에 연결되는 것은 매우 중요하며 이는 낙뢰 전류가 대지로 먼저 빠져나가서 다른 기기에 주는 영향을 최소화하려는 것입니다.

빌딩의 단면도에서 다음과 같은 접지를 확인할 수 있습니다.
- 빌딩의 구조물 (기둥)은 접지에 연결되어야 합니다. 최소 대각선 방향에서 두군데는 접지에 연결되어 철근이나 철골이 접지에 연결되게 합니다.
- 계단의 핸드레일은 접지에 연결되어야 합니다.
- 인하도선은 750mm 마다 클램프로 고정되어야 합니다.

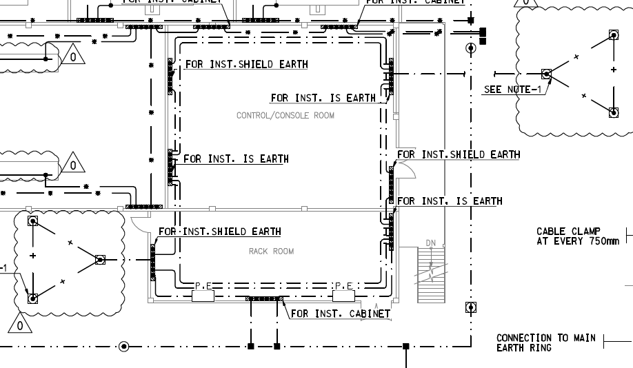
4) 제어실의 접지 (Control Building)
계장접지는 프로젝트 스펙에 따라서 조금씩 다릅니다. 계장에서 기본적으로 외함접지와 실드접지 그리고 IS (Intrinsic Safety) 접지로 나눕니다. 각각 의 접지를 위한 접지 버스를 설치하고 루프로 연결합니다. 그 후에 제어실에서 나오는 각 접지선을 목적에 맞는 접지 버스에 연결합니다. 일반적으로 외함접지는 전기의 메인 메쉬에 바로 연결하고 실드접지와 IS접지는 별도의 접지봉에 연결한 후에 SPEC에 따라 전기 메인 메쉬에 연결하기도 하고 분리하기도 합니다.

'전기 Engineering > 피뢰와 접지' 카테고리의 다른 글
| 대형 접지 전극 시스템의 저항 측정의 문제점과 대책 (1) | 2023.12.03 |
|---|---|
| 접지 시스템 개념도 설명 (EARTHING SYSTEM PHILOSOPHY) - 2 (0) | 2023.11.06 |
| 소규모 화학 공장의 접지 계산서 샘플 (2) | 2023.10.13 |
| 소규모 공장의 접지 시방서 작성 (샘플) (0) | 2023.10.12 |
| 접지 릴 (Earth Reel)과 탄소 접지봉 (Special Earthrod) (2) | 2023.10.11 |