이전에 몇개의 포스팅을 통해서 SPD의 원리와 설치 기준들에 대해서 알아보았습니다. 준비만 하다가 포스팅이 늦어졌습니다. 이번 포스팅에서는 그러면 실제로 어떻게 어느 곳에 설치해야 하고 어디는 설치하지 않아도 되는지에 대해서 면밀히 검토해 보도록 하겠습니다.
해외의 플랜트 현장에서 전기는 SPD를 잘 사용하지 않았습니다. 그러나 계장은 자기들의 전원 라인에 SPD를 많이 사용했습니다. 이러한 배경을 가지고 SPD를 설치해야 하는 곳과 하지 않아도 되는 곳을 살펴보려고 합니다.
1. KEC의 기준 검토

위의 KEC 153.1.4 항의 서지 보호장치의 시설에 대한 기준을 살펴보면 다음과 같은 내용을 확인할 수 있습니다.
1) 전기 설비의 보호 - KS C IEC 61643-12 (저전압 서지 보호 장치 -제12부 저전압 배전 계통에 접속한 서지 보호 장치 - 선정 및 적용 지침)
2) KS C IEC 60364-5-53 (건축 전기 설비 - 제5-53부 전기기기의 선정 및 시공 - 절연 개폐 및 제어)에 따르도록 하고 있습니다.
3) 지중 저압 수전의 경우, 내부에 설치하는 전기 전자기기의 과전압 범주별 임피던스 내전압이 규정값에 충족하는 경우는 서지보호장치를 생략할 수 있다고 되어있습니다.
이상의 기준을 자세히 살펴서 실제 우리가 SPD를 설치해야 하는 곳과 생략해도 되는 곳을 명확하게 밝히는 것이 이 포스팅의 목적입니다.
2. KS C IEC 61643-12의 기준 이해 및 적용 기준

1) 보호의 필요성 확인
표준의 4항에 보호의 필요성에 대한 설명이 있습니다. SPD의 사용 여부는 사용자가 중시하는 광범위한 매개변수에 따라 결정된다고 하었습니다. 즉 절대적인 기준이 없다고 보면 됩니다. 다만 표준이나 규정에서 특별히 지정하여 설치하라고 한 경우에는 예외가 됩니다.


2) SPD의 필요성 분석
아래의 내용에 따라 SPD가 필요한지를 분석할 수 있습니다. 그러나 이러한 분석을 매 수용가마다 자체적으로 실시하기에는 어려움이 있습니다. 관련 내용만 참조하시고 실제 적용 여부는 이후의 간편화된 방식을 따르면 되겠습니다.




3) 실제 계산 예제




CRL 값이 1000보다 작으므로 SPD의 보호가 필요합니다.

CRL 값이 1000보다 크므로 SPD의 보호가 필요 없습니다.
이상의 예에서 보듯이 CRL 값은 인입 구간의 케이블 거리를 알면 쉽게 계산할 수 있습니다.



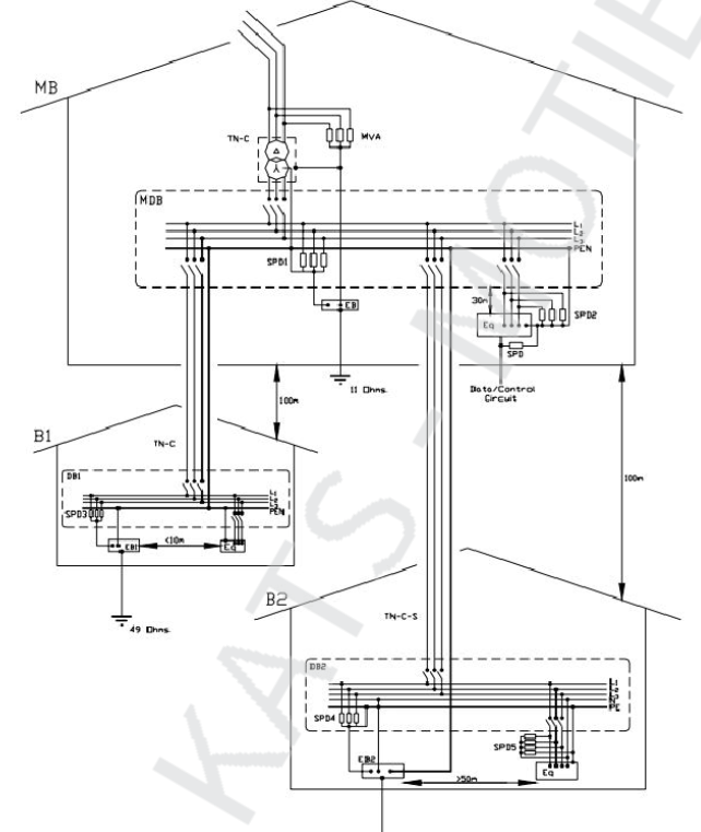
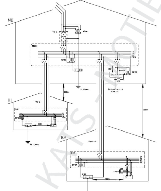
플랜트의 경우 대부분이 인입 지역에만 SPD를 설치하면 됩니다. 다만 SPD와 보호 기기의 거리가 50m 보다 크면 별도의 보호기기를 설치할 필요가 있습니다.
3. KS C IEC 60364-5-53의 기준 이해 및 적용 기준

SPD의 설치 위치 및 시험 등급


'전기 Engineering > 단선도에 포함된 모든 정보' 카테고리의 다른 글
| 초고압 변전소의 BUSBAR 시스템 (1) | 2025.12.01 |
|---|---|
| IEC 60287 케이블 사이징 - Armour Loss 계산 (0) | 2024.06.06 |
| MCB, MCCB, ELCB, RCCB의 차이점 (0) | 2024.04.26 |
| MV/LV SWGR의 계전기 선정 2 (0) | 2024.04.01 |
| MV & LV SWGR의 계전기 선정 (1) | 2024.03.27 |